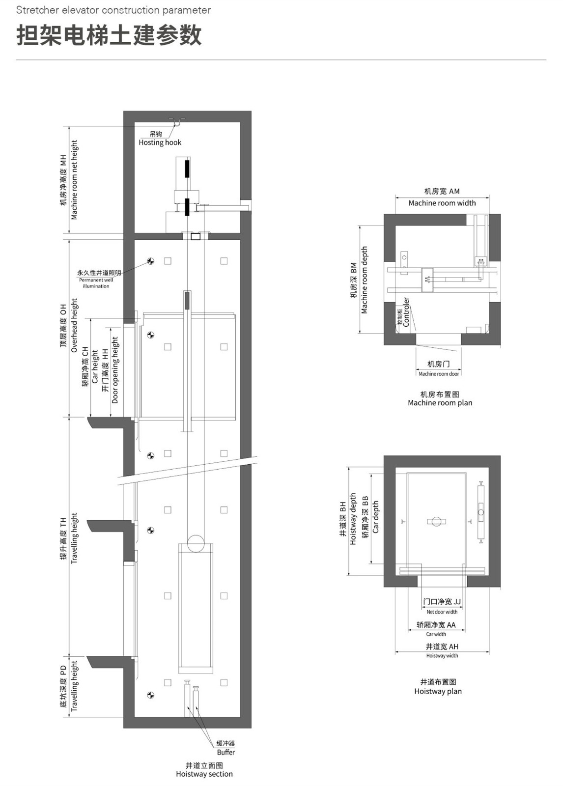
小猪视频官网擔架電梯采用深轎廂結構,大載重設計,可滿足 120 急救中心的急救擔架車、折疊式急救擔架車和軟擔架的進出要求,打造舒適的綠色通道。
版權所有©小猪视频官网電梯有限公司 備案號:贛ICP備13554332號-1 贛公網安備 36012202000318號
地址:江西省南昌市新建區望城新區興業一路366號 網址:www.niwopay.com 服務熱線:400-098-1966 技術支持:
* 信息保護中,請放心填寫